داکت اسپلیت Ducted Split Air Condition در واقع همان کولر گازی است که از ظرفیت 18000 به بالا تولید میشود و با بهره گیری ازالکترو فن قوی تر در پنل داخلی امکان کانال کشی در سقف یا دیوار کاذب را مهیا می سازد .این دستگاه از دو بخش یونیت خارجی و یونیت داخلی تشکیل شده است که یونیت خارجی آن باید در ارتفاع و فاصله افقی متناسب با ظرفیت و نوع آن نصب گردد تا کارایی مناسب را داشته باشد.
>> راهنمای خرید داکت اسپلیتداکت اسپلیت Ducted Split Air Condition در واقع همان کولر گازی است که از ظرفیت 18000 به بالا تولید میشود و با بهره گیری ازالکترو فن قوی تر در پنل داخلی امکان کانال کشی در سقف یا دیوار کاذب را مهیا می سازد .این دستگاه از دو بخش یونیت خارجی و یونیت داخلی تشکیل شده است که یونیت خارجی آن باید در ارتفاع و فاصله افقی متناسب با ظرفیت و نوع آن نصب گردد تا کارایی مناسب را داشته باشد.
به منظور تکمیل اطلاعات مشتریان عزیز، توضیحات جامع و تخصصی در ارتباط با خرید محصولات داکت اسپلیت در زیر به تفصیل بیان شده است.

دستگاه هایی که در ایران مورد استفاده قرار میگیرند تماما به صورت سقفی هستند. در تعداد انگشت شماری از پروژهها از دستگاههای پنل عمودی که داخل دیوار و یا داکت قرار می گیرند استفاده شده است که کانال آنها پس از خروج از دستگاه به داخل سقف کاذب هدایت شده و مانند مدل سقفی توزیع میشود. مدل عمودی دستگاه داکت اسپلیت در ایران استفاده و تولید نمیشود و واردکنندگان هم این دستگاهها را وارد نمی کنند.
داکت اسپلیت ها در انواع اینورتر دار و بدون اینورتر تولید می شوند. اغلب مدل های اینورتر دار با گاز مبرد R410 تولید میشوند.
مدل های بدون اینورتر این دستگاه با گاز مبرد R410 و 22R تولید میشوند.
مدل دیگری از این دستگاه در نوع حارهای یا گرمسیری یا همان داکت اسپلیت تروپیکال است که اغلب با گاز مبرد 22R عمل میکنند.

داکت اسپلیت دارای یک سیکل تبرید تراکمی است که در برخی مدل ها تواما بصورت هیت پمپ ( گرمایشی ) هم تولید می گردد . با توجه به استهلاک و میزان انرژی برق مصرفی ، استفاده از سیستم گرمایش هیت پمپ در این دستگاه به صرفه نیست و به جای آن از کویل حرارتی آبگرم در دستگاه استفاده می گردد که از آب گرم پکیج یا موتورخانه استفاده می کند.
کویل آبگرم در برخی برند ها بصورت کارخانه ای روی دستگاه و در برخی دیگر بصورت جدا گانه عرضه می شود .آب گرم مورد نیاز گرمایش کویل آبگرم داکت اسپلیت از آب گرم تولیدی پکیج حرارتی یا موتور خانه ی مرکزی تاثیر می گیرد .
معمولا کویل این دستگاه از نوع مسی دو یا سه ردیفه با فین آلومینیومی می باشد. که با توجه به ظرفیت دستگاه ابعاد سطح حرارتی و ابعاد کویل متفاوت خواهد بود .
این دستگاه ها که در دو نوع اینورتردار و معمولی تولید می شوند . در نوع اینورتر دار، توان و قدرت کارکرد دستگاه با توجه به دمای ست شده و دمای حسگر داخل مشخص خواهد شد . بصورتی که فرمان ارسالی از ترموستات به اینورتر سبب تغییر فرکانس برق ورودی به کمپرسور میشود و به طبع آن تعداد دور و قدرت کمپرسور نیز بسته به نیاز محیط متفاوت خواهد بود .
پیشنهاد مطالعه : راهنمای استفاده از داکت اسپلیت
این دستگاه مانند سایر تجهیزات سرمایش تبخیری از کندانسور، کمپرسور، اواپراتور، سیستم انبساط و سیستم کنترل و ... تشکیل شده است.
کندانسور داکت اسپلیت از لوله های مسی با فین پلیت آلومینیومی یا گلدن فین تولید میشود که دارای یک یا دو فن جهت انجام انتقال حرارت می باشد. پروانه فن کندانسور به جهت صدای کمتر و قدرت هوادهی بالاتر به صورت بایونیک تولید میشود. الکتروموتورهای به کار رفته در کندانسور معمولاً به صورت DC هستند.
کمپرسور داکت اسپلیت در ظرفیت های پایین از نوع روتاری و در ظرفیت های بالاتر از نوع اسکرال می باشد. کمپرسور این دستگاه ها به صورت دور ثابت و یا دور متغیر طراحی میشوند. کمپرسور این دستگاه تا ظرفیت ۳۶۰۰۰ از نوع تک فاز و در ظرفیتهای بالاتر از نوع سه فاز هستند. البته برخی از برندها از کمپرسورهای تک فاز در ظرفیت های ۴۵۰۰۰ و ۵۴۰۰۰ هم استفاده میکنند.
ترموستات داکت اسپلیت روی دیوارهای داخلی به گونهای که باد مستقیم و نور خورشید به آنها نخورد نصب میشوند. با حسگر دمای محیط به دستگاه دستور کار یا توقف میدهد. بسیاری از این دستگاهها دارای ترموستات های هوشمند با کنترل از راه دور هستند. ارتفاع نصب برای فرمان صحیح و دستگاه ترموستات ١۵٠ سانتی متر از کف است.
ترموستات های این دستگاه دارای قابلیت انتخاب حالت سرما و گرما هستند که برای فصل گرما فقط یونیت داخلی کار می کند و فن هوا را از روی کویل گرم عبور می دهد و فضا را گرم می کند.
آیا می دانید از بین تمامی محصولات در زمینه تهویه مطبوع ، هواساز یکی از پرکاربرد ترین و قدرتمند ترین دستگاه ها به شمار می رود؟ دستگاه هواساز متناسب با نیاز خود را از بامین تهویه خریداری نمایید.
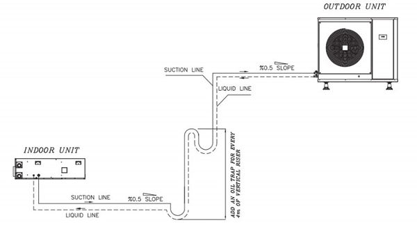
داکت اسپلیت از دو قسمت اصلی تشکیل شده است: واحد داخلی (Indoor unit) و واحد خارجی (Outdoor unit)
به منظور اتصال سیم های برق داکت اسپلیت باید برق تغذیه اصلی را به واحد خارجی (Outdoor unit) متصل کرده و سپس کابل ارتباطی یونیت خارجی به یونیت داخلی را متصل نمود. در شکل زیر نمونه ای از اتصال سیم ها به ترمینال های یونیت خارجی و یونیت داخلی نشان داده شده است.



برای اتصال سیم های یونیت داخلی ابتدا کاور جعبه برق را باز کرده سپس کابل ریموت دیواری و کابل ارتباطی یونیت خارجی به یونیت داخلی را در محل ترمینالهای مربوطه با استفاده از اتصال سر سیم مناسب نصب میکنیم در شکل زیر نمونه ای از اتصال سیم ها به ترمینال های یونیت داخلی نشان داده شده است.



در مسیر کابل اصلی برق متصل شده به یونیت خارجی از کلید و فیوز قطع کننده مناسب استفاده میشود. پس از اطمینان از نصب صحیح سیم ها در ترمینالهای یونیت داخلی و خارجی کلید اصلی برق دستگاه را در حالت وصل قرار داده و سپس اقدام به راهاندازی آن می نماییم.
این دستگاهها در نوع تک فاز دارای مصرف برق بالا هستند. برای مثال یک دستگاه ۳۶۰۰۰ معادل ۱۵ آمپر مصرف میکند. در دستگاه های داکت اسپلیت باید سعی شود از نوع اینورتر دار استفاده شود. در مدل های سه فاز چون آمپر مصرفی بین سه فاز تقسیم میشود میتوان گفت نسبتاً بهینه تر هستند برای مثال ظرفیت ۴۸۰۰۰ سه فاز روی هر فاز حدود ۷ آمپر می کشد.
استفاده از کویل گرمایی در این دستگاه سبب کاهش مصرف برق و خاموش ماندن کمپرسور در فصل سرما می شود. و گرمایش از طریق آبگرم ورودی به کویل، از موتورخانه یا پکیج تامین میشود.
کولر گازی اسپلیت تنها برای تهویه محیطی است که دستگاه در آن نصب شده است اما داکت اسپلیتها دارای قدرت بالاتر برای کانال کشی و تهویه چند فضا مانند چند اتاق خواب و فضای سالن هستند.
کولر گازی اسپلیت دارای پنل داخلی دکوراتیو برای نصب در محیط است و پنل آن رویت می شود. در صورتیکه داکت اسپلیت دارای پنل داخلی دکوراتیو نیست و معمولاً زیر سقف کاذب نصب میشود تا رویت نشود. هوای خروجی از پنل داخلی داکت اسپلیت به وسیله کانال کشی به فضاهای مختلف راه پیدا می کند.
فن یونیت داخلی اسپلیت ها از نوع فن های تانژانت با طول زیاد و قطر کم است که قدرت پرتاب کمتری را برای جریان هوا در محیط دارند اما فن داکت اسپلیت ها دارای قطر بیشتر و طول کمتر برای ایجاد هد و هوادهی بیشتر هستند.
اسپلیت دیواری در بزرگترین سایز دارای ظرفیت ۳۶۰۰۰ بی تی یو است اما داکت اسپلیت ها تا ظرفیت ۹۰۰۰۰ بی تی یو تولید میشوند.
تفاوت دیگر اسپلیت ها و داکت اسپلیت ها در قدرت موتور و امکان طول بیشتر لوله کشی داکت اسپلیت ها نسبت به اسپلیت هاست.
از دیگر تفاوتهای اسپلیت و داکت اسپلیت در سیستم کنترلی آن است. کولر گازی اسپلیت مستقیماً با ریموت کنترل و پنل داخلی کنترل می شود اما داکت اسپلیت ها چون قابل رویت نیستند دارای یک کنترلر دیواری هستند که یا به صورت دستی یا با ریموت کنترل تنظیم می شوند.
سیستم گرمایش اسپلیت ها قابلیت نصب کویل گرمایش را ندارد اما داکت اسپلیت ها دارای امکان نصب کویل گرمایشی جهت اتصال به پکیج یا موتورخانه هستند که در نتیجه در فصل سرما می توان از گرمایش ارزان قیمت به وسیله سوختهای فسیلی بهره برد و از استهلاک دستگاه با عدم نیاز به کارکرد کمپرسور در فصل سرما کاست.
بیشتر بخوانید : تفاوت چیلر و داکت اسپلیت
با توجه به حساسیت و دقت مورد نیاز در خرید و نصب داکت اسپلیت بهتر است قبل از هر گونه اقدامی و بعد از مشخص شدن برند مورد نیاز از شرکت مورد نظر در خواست کارشناسی از محل شود تا با توجه به نظر کارشناس و موقعیت پروژه تعداد و ظرفیت دستگاه مشخص گردد .
در بسیاری از برندها در ظرفیت های بالای 36000 دستگاه ها بصورت سه فاز هستند لذا در صورت عدم دسترسی به برق سه فاز در واحد های بزرگ تر از دویا چند دستگاه با ظریفت پایین تر و تک فاز استفاده می شود .

این دستگاهها باید توسط ساپورتهایی در سقف کاذب مهار شوند و کانال کشی از محل استقرار دستگاه تا محل خروجی هوا به وسیله کانال هایی فلزی – پیش ساخته و یا فلکسی بل عایق دار باید انجام گردد .




ابعاد کانال کشی و اصول اجرایی و جنس کانال تاثیر بسزایی در کارایی ، طول عمر و صدای داکت اسپلیت خواهد داشت.

کانال کشی دستگاه ها باید توسط افراد متخصص طبق نقشه ها اجرا گردد و توسط ناظر شرکت مورد نظر تایید گردد .

حد فاصل بین یونیت داخلی و خارجی نباید از متراژ مورد تایید شرکت بیشتر باشد در اینصورت ظرفیت دستگاه باید افزایش یابد و یا اینکه محل استقرار یونیت خارجی دستگاه تغییر کند . ( یونیت خارجی دستگاه باید در محلی نصب گردد که دارای فضای مناسب جهت استقرار و گردش هوا انتقال حرارتی را داشته باشد .)
سیستم کنترل دستگاه داکت اسپلیت که معمولا بصورت دیواریست، باید در شرایط زیر نصب گردد :

در نصب و را اندازی ، هزینه های شاسی کشی و کانال کشی سوراخ کاری و برشکاری و کابل کشی به عهده مشتریان محترم می باشد.
جهت انتخاب این دستگاه با توجه به دو فصل بودن این دستگاه می بایست این سیستم بر اساس ظرفیت سرمایش مدل گردد . برای این کار متراژ کل فضای مورد نظر را باتوجه به ارتفاع نرمال در عدد 400 تا 600 ضرب کرده و ظرفیت تقریبی دستگاه بدست می آید .
معمولا ظرفیت این دستگاه بر اساس تن تبرید لحاظ می شود که هر 12000 بی تی یو بر ساعت ظرفیت برودتی معادل یک تن تبرید است .
برای مثال در یک ساختمان 120 متری که دارای ارتفاع نرمال در شرایط آب و هوای نرمال قرار دارد و میزان ظرفیت برودتی مورد نیاز دستگاه معادل 48000 بی تی یو بر ساعت معادل 4 تن تبرید است .
در بسیاری از ساختمان ها برق سه فاز برای اینگونه واحد ها در نظر گرفته نمی شود . لذا یا باید از دستگاه هایی با برند های دیگر استفاده کرد که در این ظرفیت از نوع تک فاز داشته باشند و یا اینکه فضاها را تفکیک کرده و از دو یا چند دستگاه با ظرفت پایین تر استفاده نمود .
بهترین برند داکت اسپلیت در بازار ایران میتسوبیشی، اجنرال، ال جی، سامسونگ، تراست و ... هستند. کمپرسور این دستگاه قلب دستگاه است. بسیاری از برندهای دیگر چینی و ایرانی از کمپرسورهای برند میتسوبیشی، کاوازاکی، سانیو، GMCC ، توشیبا، ال جی و سامسونگ استفاده می کنند.
قیمت داکت اسپلیت به ظرفیت، برند و اینورتر دار یا بدون اینورتر بودن دستگاه بستگی دارد. معمولا برندهای معتبر به دلیل کیفیت قطعات و خدمات بهتر دارای قیمت های بالاتر هستند. نوع اینورتر این دستگاه به دلیل افزایش قیمت کمپرسور دارای قیمت تمام شده بالاتر است.
دستگاههای داکت اسپلیت در برندهای مختلف دارای شرایط گارانتی متفاوت هستند که تماما توسط پرسنل مجاز نصب و گارانتی می شوند . معمولا دستگاه های داکت اسپلیت دارای 5 سال ضمانت کمپرسور و 2 سال ضمانت قطعات می باشند .
با سپاس از اعتماد شما ، شرکت بامین تهویه ارائه دهنده انواع مدل های داکت اسپلیت در ظرفیت های مختلف به مشتریان می باشد. فروشگاه اینترنتی بامین تهویه تمامی مشخصات ، اطلاعات فنی ، تصاویر و قیمت داکت اسپلیت در انواع مختلف را جهت بررسی و خرید در اختیار مشتریان محترم قرار داده است.
بامین تهویه تخصصی ترین وب سایت کشور در زمینه تأسیسات
داکت اسپلیت یک سیستم تهویه مطبوع مرکزی است که از دو بخش یونیت داخلی (نصب شده در سقف کاذب) و یونیت خارجی تشکیل شده است. این دستگاه بر اساس سیکل تبرید تراکمی عمل میکند و هوای خنک یا گرم را از طریق کانالکشی به فضاهای مختلف منتقل مینماید. در حالت سرمایش، گاز مبرد با عبور از کمپرسور و کندانسور گرمای هوا را جذب میکند و در حالت گرمایش (در مدلهای هیت پمپ یا با کویل آبگرم) این فرآیند معکوس میشود.
بله، اما با توجه به معایبی مانند عدم کنترل دمای جداگانه برای هر اتاق و نیاز به کانالکشی گسترده، بهتر است در ساختمانهایی استفاده شود که فضاهای مشترک بزرگ (مانند سالنها) دارند یا نیاز به یک سیستم مرکزی با ظرفیت بالا وجود دارد. برای واحدهای کوچک، اسپلیتهای معمولی یا سیستمهای VRF گزینههای بهتری هستند.
مصرف برق بستگی به ظرفیت دستگاه دارد. بهطور مثال:
خیر، داکت اسپلیت مانند کولر گازی معمولی فقط دما را تنظیم میکند و کنترل رطوبت نیاز به دستگاههای ویژه مانند هواساز دارد.
خیر، کانالکشی برای توزیع هوا به فضاهای مختلف ضروری است. در صورت عدم امکان کانالکشی، بهتر است از کولر گازی چندپنل یا سیستم VRF استفاده شود.
با نگهداری مناسب (سرویس سالانه، تعویض فیلترها و چک کردن گاز مبرد)، عمر مفید دستگاه حدود ۱۰-۱۵ سال است. گارانتی معمول این دستگاهها شامل ۵ سال ضمانت کمپرسور و ۲ سال ضمانت قطعات میشود.
دیدگاه خود را با ما در میان بگذارید

عشاقی
سه شنبه 9 مرداد 1403سلام خواستم بپرسم که 25000 بی تی یو بر ساعت معادل چند تن تبرید خواهد بود ؟
مثلا داکت اسپلیت از برند میتسوبیشی با ظرفیت 25000 بی تی یو بر ساعت ، یعنی چند تن تبرید است ؟
بامین تهویه
سه شنبه 9 مرداد 1403سلام دوست عزیز .
داکت اسپلیت میتسوبیشی با ظرفیت 25000 بی تی یو بر ساعت ، معادل 2 تن تبرید است .
یارمحمدی
چهارشنبه 19 اردیبهشت 1403سلام خسته نباشید . خواستم بپرسم به کارگیری تنها یک یونیت داخلی برای ساختمانهایی با متراژ بالا کافی هستش؟
بامین تهویه
چهارشنبه 19 اردیبهشت 1403سلام ممنون . به کارگیری یک یونیت داخلی برای ساختمانهایی با متراژ بالا کافی نیست.
خرمشادمندی
یکشنبه 16 اردیبهشت 1403سلام چه کار باید بکنیم تا سطح هوادهی دستگاه به بالاترین شکل ممکن ارتقا پیدا کنه؟
بامین تهویه
یکشنبه 16 اردیبهشت 1403سلام دوست عزیز . به طور مثال ، پاک شدن هوای داخل محیط توسط فیلتر از آلودگیها و گرد و غبار ، یکی از عواملی ست که سبب می شود سطح هوادهی دستگاه به بالاترین شکل ممکن ارتقا یابد و در هر ظرفیت به محیط انتقال یابد.
یکی ران
سه شنبه 11 اردیبهشت 1403پنل سقفی یا اصطلاحاً یونیت داخلی سقفی به چه شکل هستش؟
بامین تهویه
سه شنبه 11 اردیبهشت 1403سلام دوست عزیز . پنل داخلی یک پنل سقفی از نوعی است که بجای نصب بر روی دیوار زیر سقف نصب شده و هوای مطبوعی که تولید می شود(سرد و یا گرم) از طریق کانال (گالوانیزه،پی پال،فلکسیبل) به اتاقها و یا نقاطی که مورد نظر است منتقل می شود .
امینی
سه شنبه 8 اسفند 1402سلام داکت اسپلیت سامسونگ اینورتر موجود دارین؟
بامین تهویه
چهارشنبه 9 اسفند 1402سلام دوست عزیز . بله . لطفا درخواستتون رو برای داکت اسپلیت سامسونگ اینورتر به واحد فروش اعلام بفرمایید تا همکارانمون راهنماییتون کنن.88306500-021
طاهری
دوشنبه 7 اسفند 1402روز بخیر. قیمت داکت اسپلیت 5 تن رو میشه بفرمایین از موجودیاتون؟
بامین تهویه
سه شنبه 8 اسفند 1402سلام ممنون روز شما هم بخیر . لطف درخواستتون رو برای داکت اسپلیت پنج تن به واحد فروش اعلام بفرمایید تا همکارانمون راهنماییتون کنن. 88306500-021
شریفی
دوشنبه 7 اسفند 1402داکت اسپلیت یورک 24000 میخوام سفارش ثبت کنم . ممنون میشم راهنماییم کنین.
بامین تهویه
دوشنبه 7 اسفند 1402سلام . لطفا درخواستتون رو برای داکت اسپلیت یورک 24000 به واحد فروش اعلام بفرمایید تا همکارانمون راهننماییتون کنن. 88306500-021
نجفی
دوشنبه 7 اسفند 1402سلام روز بخیر ، داکت اسپلیت وارداتی چه برندی دارین برای سفارش؟
بامین تهویه
چهارشنبه 9 اسفند 1402سلام ممنون روزشما هم بخیر . برند های موجود ، هایسنس - گرین - بویمن و ... هستش . لطفا جهت استعلام موجودی برای داکت اسپلیت ، با واحد فروش تماس بگیرید تا همکارانمون راهنماییتون کنن. 88306500-021
زمانی
دوشنبه 7 اسفند 1402سلام . داکت اسپلیت صنعتی چه برندی پیشنهاد میدید؟
بامین تهویه
یکشنبه 13 اسفند 1402سلام دوست عزیز . متاسفانه نمیتونیم به یرند خاصی اشاره کنیم . لطفا درخواستتون رو برای داکت اسپلیت صنعتی به واحد فروش اعلام بفرمایید تا همکارانمون راهنماییتون کنن. 88306500-021
رجبی
دوشنبه 7 اسفند 1402سلام ، داکت اسپلیت چینی ، چه برندی رو پیشنهاد میکنین؟
بامین تهویه
شنبه 12 اسفند 1402سلام دوست عزیز . متاسفانه امکان اشاره به برند خاصی رو نداریم . لطفا درخواستتون رو برای داکت اسپلیت چینی ، به واحد فروش اعلام بفرمایین تا همکارانمون راهنماییتون کنن . 88306500-021