ضدعفونی کردن استخرها یکی از جوانترین اصول بهداشتی است که در حفظ آب استخرهای عمومی و خصوصی اهمیت زیادی دارد. تجهیزات ضد عفونی استخر، ابزارهای بسیار مهمی هستند که به مالکان استخرها کمک میکنند تا آب استخر را تمیز، سالم و آماده استفاده نگه دارند. از مواد شیمیایی مختلف گرفته تا فیلترها و دستگاههای تصفیه هوا، تجهیزات ضدعفونی استخرها باعث حفظ کیفیت آب و جلوگیری از شیوع بیماریها میشوند.در این مقاله، به بررسی انواع مختلف تجهیزات ضد عفونی استخرخواهیم پرداخت. از جمله این تجهیزات میتوان به مواد ضدعفونی مانند کلر و برومین، دستگاههای تصفیه آب و هوا، سیستمهای نظارت و کنترل آب، و سایر تجهیزات مرتبط اشاره کرد.
>> راهنمای خرید تجهیزات ضد عفونیضدعفونی کردن استخرها یکی از جوانترین اصول بهداشتی است که در حفظ آب استخرهای عمومی و خصوصی اهمیت زیادی دارد. تجهیزات ضد عفونی استخر، ابزارهای بسیار مهمی هستند که به مالکان استخرها کمک میکنند تا آب استخر را تمیز، سالم و آماده استفاده نگه دارند. از مواد شیمیایی مختلف گرفته تا فیلترها و دستگاههای تصفیه هوا، تجهیزات ضدعفونی استخرها باعث حفظ کیفیت آب و جلوگیری از شیوع بیماریها میشوند.در این مقاله، به بررسی انواع مختلف تجهیزات ضد عفونی استخرخواهیم پرداخت. از جمله این تجهیزات میتوان به مواد ضدعفونی مانند کلر و برومین، دستگاههای تصفیه آب و هوا، سیستمهای نظارت و کنترل آب، و سایر تجهیزات مرتبط اشاره کرد.
به منظور تکمیل اطلاعات مشتریان عزیز، توضیحات جامع و تخصصی در ارتباط با خرید محصولات تجهیزات ضد عفونی در زیر به تفصیل بیان شده است.

ضد عفونی و گندزدایی آب استخر از ارکان اصلی نگهداری استخر می باشد. سیستم تصفیه استخری که نتواند باکتری و ویروسها را کشته و از آب حذف کند سیستم استاندار و قابل قبولی نمی باشد.
وجود این میکرو ارگانیسم ها باعث آلودگی ، تغییر رنگ و بوی آب می شود.
این بخش از تاسیسات استخر دارای پیچیدگی های خاص خود که نیازمند آشنایی با بعضی خواص فیزیکی و شیمیایی مواد می باشد دارد. هرچند که در صنعت استخر به بعضی مواد کمتر توجه می شود اما با کمی دقت و کسب اطلاعات میتوان بهترین کیفیت آب را با کمترین هزینه بدست آورد.
مواد مورد استفاده جهت گند زدایی و ضدعفونی آب استخرمتداول در ایران:
1-کلر
پرمصرف ترین ماده ضدعفونی کننده استخر کلر می باشد. ارزانی ، راحتی کارکرد ، در دسترس بودن ، عدم نیاز به تجهیزات خاص و دوام زیاد در آب از عواملی است که باعث استفاده روزافزون از کلر شده است.
هرچند که با پیشرفت تکنولوژی رغیب سرسخت کلر یعنی ازن طرفدارانی برای خود پیدا کرده اما استخرهایی که از ازن برای گندزدایی استفاده می کنند مجبور به استفاده از کلر به میزان 10 تا 20 درصد نیاز ضدعفونی استخر خواهند بود.
استخرهایی که توسط کلر نگهداری می شوند نیاز به شکل یا لوله کشی خاصی نبوده و ماندگاری کلر در آب باعث راحتی استفاده از این ماده شده است. میزان کلر در آب باید بین 0.5 تا 3ppm باشد، اما فقط میزان کلر در ضدعفونی کردن آب موثر نیست و PH آب نیز باید همزمان با کلر تست و تنظیم شود .برای درک بهتر این موضوع به عنوان مثال در PH 7/5 تقریبا 50% کلر آزاد فعال هستند اما در PH بالای 8 تنها 21 درصد کلرهای آزاد فعال خواهند بود.

کلر به سه شکل در دسترس می باشد:
که پر استفاده ترین آن به صورت جامد و گازی می باشد.
کلر های جامد به صورت پودر و قرص در بازار یافت می شوند که نمونه پودری در استخرهای بزرگ و عمومی و نمونه قرصی بیشتر کاربری خانگی داشته و در استخر خصوصی مورد استفاده قرار می گیرد.
کلر جامد با درجه ناخالصی متفاوتی می باشد و پس از مخلوط کردن در آب تمام کلر حل نمی شود،به همین منظور پس از حل کلر در آب باید کمی صبر کرد تا قسمتهای حل نشده ته نشین و ماده زرد رنگ شفافی به دست آید، سپس به آرامی مایع را برداشت کرده و به آب استخر تزریق شود.
در استخرهای بزرگ و عمومی برای تزریق کلر جامد و یا مایع از دوزینگ پمپ یا پمپ کلرزن استخر استفاده می شود،اما بهترین راه استفاده از دستگاه های کلرزن می باشد که از دو منبع با اختلاف ارتفاع و نصب شده به روی یک شاسی می باشد.
هر دو مخزن پلاستیکی بوده و بروی مخزن بالایی، همزن نیز قرار دارد. با ریختن کلر و آب داخل مخزن بالایی و روشن کردن دستگاه ، ابتدا همزن کلر را به خوبی در آب کرده سپس همزن خاموش شده تا مواد حل نشده ، ناخالصی و مواد معلق در کف مخزن ته نشین شوند. سپس با باز کردن شیر که با فاصله از کف مخزن قرار دارد محلول کلر مایع مواد مخزن پایینی می شود.
با پرشدن مخزن تحتانی پمپ تزریق کلر یا دوزینگ پمپ روشن شده و بر اساس زمان ، میزان و سرعت تنظیم شده کلر را به آب استخر تزریق می کند.تزریق کلر می تواند از طریق سیستم کنترل هوشمند و یا بصورت دستی انجام شود.این دستگاه ها نه تنها برای استخر بلکه برای منابع آب مصرفی و گندزدایی و ضدعفونی آب بهداشتی نیز قابل استفاده اند. در ساختمان ها، مجتمع های مسکونی و تجاری و کارخانه هایی که از آب چاه برای شرب استفاده می شود می توان از این سیستم برای کلر زنی و ضدعفونی آب شرب استفاده کرد. اما میزان تزریق و محل تزریق این کلر در سیستم آب مصرفی بسیار متفاوت می باشد.
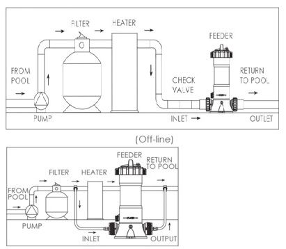
در استخرهای کوچک ، خانگی و خصوصی که خرید سیستم تزریق کلر و دوزینگ پمپ، اقتصادی نمی باشد و همچنین اپراتوری برای کنترل و نظارت بر پروسه وجود ندارد ، از کلرزن خطی استفاده می شود. کلر زن های خطی در دو نوع In Line و Off Line می باشند.
در هر دو نوع قرص کلر قرار گرفته ولی نوع اتصال آنها در مسیر آب استخر و نوع تزریق متفاوت می باشد. در نوع In Line کلر زن در مسیر آب خروجی از فیلتر و گرمکن استخر بصورت سری قرار گرفته و آب استخر با گذشتن از کلرزن خطی In Line، کلر مورد نیاز خود را دریافت می کند. اما در نوع Off Line یک شلنگ رابط بعد از خروجی از فیلتر و قبل گرم شدن آب به مسیر اصلی آب استخر متصل شده و به ورودی کلرزن خطی متصل می شود و خروجی کلرزن خطی نیز توسط شلنگ مشابه به آب خروجی از گرمکن یا هیتر استخر متصل می شود.کلرزن Off Line نصب آسان تر و کاربرد بیشتری دارد ولی هزینه اولیه کمی بالاتر است.
روش دیگری برای تنظیم و نگه داشتن میزان کلر آب استخر در اندازه مجاز، استفاده از شناور قرص کلر یا غواصک کلر می باشد.در این شناورها نیز از قرص کلر استفاده می شود،که بر اساس اندازه قرص شناور خریداری می شود.این شناور ها دارای دریچه تنظیم میزان کلر می باشد و هرچه بار استفاده از استخر بیشتر یا استخر روباز باشد این دریچه را بیشتر باید باز کرد.
پس از قرار دادن قرص کلر در شناور ، قرص کلر آن را بروی سطح آب استخر رها کرده و با شناور ماندن آن و حرکت روی سطح آب، قرص کلر موجود در آن حل و وارد آب می شود،اما در روش شناور قرص کلر و هم کلرزن خطی، شما با تنظیم میزان تزریق و یا تماس آب با قرص کلر ، میزان مشخصی کلر به آب تزریق می کنید و در نتیجه کنترل مشخصی روی میزان دقیق کلر آب استخر وجود ندارد و در زمان استفاده از استخر و یا بی استفاده ماندن استخر ، همان میزان کلر تزریق و یا حل می شود.
البته با بالا رفتن میزان کلر آب استخر ، میزان ضریب حلالیت کلر در آب تغییر می کند اما این مقدار بسیار کم بوده و قابل بیان نمی باشد.استفاده از تابلو برق های هوشمند و سیستم کنترل کلر آب استخر می تواند روش مناسبی برای کنترل کلر آب استخر باشد، اما این سیستم باید به همراه پمپ کلر (دوزینگ پمپ) و یا با اعمال تغییراتی در نوع لوله کشی و شیرآلات با سیستم کلرزن خطی مورد استفاده قرار گیرد.
در استخرهای بزرگ عمومی یا مجتمع هایی که اپراتور استخر و یا تاسیسات دارند زمان کلرزنی توسط اپراتور تعیین می شود. اپراتور یا نگهدار سیستم تاسیساتی با تست میزان کلر آزاد باقی مانده در آب در ساعات مشخص زمان و میزان تزریق کلر را تخمین می زند.
پیشنهاد مطالعه : گندزدایی آب استخر
برای تست میزان کلر از روش های مختلفی می توان استفاده کرد. پر استفاده ترین روش استفاده از معرف کلر OTO و یا DPD هستند. در این دو روش ابتدا نمونه ای از آب تهیه کنید. بهتر است این نمونه از 30 تا 50 سانتی متر پایین تر از سطح آب قرار گرفته شود. برای این کار ابتدا ظرف محلول را با آب استخر چند بار شستشو دهید ، سپس انگشت خود را روی دهانه ظرف نمونه بگذارید.
ظرف را در عمق مناسب فرو برده و انگشت خود را از روی دهانه بردارید ، سپس با گرفتن مجدد مجرای لوله نمونه توسط انگشت ، ظرف را از آب خارج کنید.اورتوتولیدن (Orthotoluidine) یا DPD،را به میزان اعلامی شرکت سازنده تستر کلر به آب نمونه اضافه کرده و رنگ محلول به دست آمده را با نمونه رنگ در درجات کلر مختلف مقایسه و مشابه ترین رنگ را انتخاب و عدد مقابل آن را به عنوان میزان سطح کلر محلول در آب ثبت می کنند.
میزان دقت و صحت عملکرد این نوع تسترهای کلر بستگی به شرکت سازنده و شرکت سازنده معرف (DPD یا OTO) می باشد،اما در جمع بندی کلی میتوان تسترهای DPD را قابل اطمینان تر خواند و اکثر ارگان های نظارتی بر عملکرد استخرها و آب های شرب از نمونه DPD و ساخت شرکت های معتبر استفاده می کنند.
معرف OTO به طور معمول میزان کلر را کمی بالاتر از سطح واقعی نشان می دهد، اما به دلیل ارزانی و دسترسی آسان به محلول اورتوتولایدین استفاده از آن در استخرها بخصوص استخرهای خانگی و خصوصی بیشتر می باشد.در زیر نمونه های تستر DPD و OTO را مشاهده می کنید.

استفاده از تسترهای ذکر شده نیاز به معرف و محلول دارد. این وابستگی به مواد در مواردی می تواند محدودیت ایجاد کند و هزینه خرید محلول در بازه های زمانی دارد.
روش دیگر برای تست میزان کلر و PH آب ، استفاده از تسترهای الکترونیکی کلر می باشد.
این تسترها نیازی به محلول و نمونه گیری از آب ندارند و با قرار دادن سنسور درون آب استخر میزان کلر و PH نشان می دهد. تسترهای میزان PH نیز مانند تستر کلر در دو نوع محلول شیمیایی و الکترونیکی می باشد و معمولا این تسترها بصورت یکپارچه با ظروف تستر کلر عرضه می شود.
میزان PH همان طور که قبلا گفته شد در میزان شفافیت و عملکرد کلر بسیار موثر است از همین رو این دو محلول و تستر را به صورت یکجا ساخته و ارائه می دهند، و در زمان تست گیری نیز PH و کلر باهم سنجیده می شوند.
میزان مناسب PH بین 7/2 تا 7/8 می باشد. (PH آب خنثی 7 می باشد)آب اسیدی خورنده است ، در حالیکه آب قلیایی تشکیل رسوب می دهد . آب اسیدی میتواند سطوح فلزی استخر شامل مخازن فیلتر، شیرها ، لوله ها ، هیترها، و سایر قسمت های فلزی را خراب کند. همچنین آب خورنده می تواند پوست و چشم ها را بسوزاند و یا حتی مینای دندان ها را خراب کند. از طرف دیگر ، رسوب ، اثر متضادی دارد.
رسوب ، یک ماده معلق سفیدرنگ است که در لوله ها ، پمپ ها، و سایر تجهیزات استخر تشکیل می شود و عملکرد آنها را ضعیف یا ناکارآمد می کند. آب قلیایی می تواند باعث کدر شدن آب و سوزش پوست شود. هرچقدر PH بالاتر باشد، اثر ضد عفونی کننده ها کمتر و آب کدرتر می باشد. مقیاس PH به صورت لگاریتمی است .
اگر به مقیاس PH دقت شود متوجه می شوید که هر واحد آن ، نشانگر یک افزایش یا کاهش ده برابری در اسیدی بودن آب است.
برای مثال ، 6PH ، ده برابر اسیدی تر از 7PH است. 5PH ، صدبرابر اسدی تر از 7PH است. و 4PH، هزار برابر اسیدی تر از 7PH است. و در جهت دیگر، 8PH، ده برابر قلیایی تر از 7PH است، در حالیکه 9PH ، صد برابر قلیایی تر و 10PH ، هزار برابر قلیایی تر از 7PH هستند.تغییر PH آب به اندازه 0.5 واحد ، باعث می شود تا آب به مقدار 280% اسیدی تر یا قلیایی تر شود . مقدار PH در اغلب استخرهای شنا باید بین 7/8 - 7/2 نگه داشته شود. با افزایش PH به سمت 7/8 ممکن است آسایش افراد بیشتر شود ، اما در این PH به کلرین بیشتری نیازمندیم. در PH پایین ونزدیک به 7/2 ، کلرین کمتری مورد نیاز است، اما آسایش افراد کم می شود . بسیاری از افراد PH 7/5 - 7/4 را بهترین PH برای آب استخر می دانند.
اساسا ازن شکلی از اکسیژن است که وقتی از اشعه ماوراء بنفش (UV) در اتمسفر زمین با اکسیژن واکنش می دهد، تولید میگردد.
در زمان طوفان های الکتریکی ، ازن در زمان حرکت برق از میان مولکول های اکسیژن بوجود می آید.بعضی ها به ازن (اکسیژن پر انرژی ) میگویند.
ازن در از بین بردن انواع باکتری ها و ویروس ها بسیار موثر بوده و در برخی موارد از کلر نیز قوی تر است. مثلا ازن باکتری های E.coil را 25 بار سریعتر از اسید هیپوکلریت ، که از کلر به دست می آید ، از بین می برد.
ازن تمام باکتری های جلبکی و ویروس ها را از بین می برد ، همچنین به دلیل بی بو و بی مزه بودن نسبت به کلر ارجحیت دارد . ازن قابلیت منحصر به فردی در از بین بردن کامل اوره دارد ، بنابراین از شکل گیری کلرامین های مضر جلوگیری می گردد. استفاده از ازن نیاز به اضافه کردن مواد شیمیایی را 50 تا 90 در صد کاهش می دهد.
طرفداران ازن ادعا میکنند که استفاده از آن جهت ضدعفونی ، باعث بی رنگ شدن مو و لباس ها نمی شود ، هیچ بویی هم ندارد ، چشم را نمیسوزاند و باعث ایجاد TDS یا مواد جامد محلول نمیگردد.
نمک طعام معمولی یا کلرید سدیم (NaCL) میتواند از طریق الکترولیز ، به هیپوکلریت سدیم (NaOCL) تبدیل گردد. این عمل توسط الکترودهایی که در محفظه ی محلول نمک قرار می گیرد ، انجام میشود. هیپوکلریت سدیم با آب واکنش داده و اسید هیپوکلریت یا اسید فعال (یا اسید هیپوبروموس) تولید می کند، که ضدعفونی کننده موثری است. تولید کلر ، عموما با استفاده از یک سلول الکترولیتی ،شامل یک صفحه آند و یک صفحه کاتد است. بزرگترین مزیت این سیستم آن است که نیازی به خرید یا نگه داری و ذخیره مواد شیمیایی جهت ضد عفونی نیست.
اخیرا این سیستم در آلاسکا هم پرطرفدار شده است، چون حمل مواد شیمیایی استخرها بسیار پرخطر است . استفاده از این روش برای استخرهای خانگی هم مناسب است، زیرا موارد خطر آفرین مواد شیمیایی ، از جمله نگهداری آنها در گاراژها و انبارها یا شیوه اشتباه استفاده از آنها ، به کلی حذف می گردد. مزیت دیگر این روش آن است که قابل تولید مجدد می باشد. در این سیستم ، کلر ترکیبی می تواند به کلر آزاد تبدیل شود. با وجود مزیت های ذکر شده ، مضراتی هم در مورد آن وجود دارد.
نصب این سیستم گران قیمت است، اما اگر رشد استفاده از آن ادامه پیدا کند ، هزینه پایین می آید. برای تولید کلر مورد نیاز یک استخر ، تقریبا 3000pp یا 3 گرم در لیتر، نمک مورد نیاز است ،در نتیجه ، طعم آب این استخر شور است.
در واقع ، شوری آب این استخرها 1/12 شوری آب اقیانوس ، دریا یا محلول نمکی اشباع است. آب شور می تواند لوله کشی استخر را از بین ببرد، اما تنها وقتی که سطح نمک بیش از 6000ppm یا 6 گرم در لیتر شود.
ترکیب نور UV و پروکسید هیدروژن ، به عنوان ضدعفونی کننده ، به خصوص در استخرهای کوچک ، وان های آب داغ و جکوزی استفاده می گردد. نورهای بخار جیوه بر محفظه ای که آب استخر از آن عبور می کند ، می تابد. تابیدن این نورها انرژی کافی برای استرلیزه شدن آب درون محفظه یا لوله را تامین می کند.
امروزه از دو روش ضد عفونی کننده UV استفاده می شود: جریان از طریق پوسته و جریان از طریق لوله . در جریان از طریق پوسته ، آب بر روی محفظه ای شیشه ای که دارای یک لامپ UV است جریان می یابد.در جریان از طریق لوله ، جریان آب از طریق لوله هایی که اشعه UV را از خود عبور می دهند ، انجام می شود. در هر دو روش بقایای ضد عفونی کننده وجود ندارد. به علاوه اشعه UV، عمل اکسیداسیون را انجام نمیدهد.
اگر آب دارای زباله های ارگانیکی و مواد دفعی بدن باشد، ضد عفونی از طریق UV ، به تنهایی نمیتواند مفید باشد.
از آنجا که اشعه UV ،اکسیداسیون انجام نمی دهد ، پروکسید هیدروژن استفاده می شود که یک اکسید کننده موثر است، اما ضد عفونی کننده ضعیفی است.
سطح H2O2 باید بین 30 تا 40ppm نگه داشته شود. پروکسید اکسیژن مضراتی نیز داردT زیرا یک اکسید کننده قوی است و قدرت احتراق زیادی دارد.
گران قیمت است، نگهداری و استفاده از آن مشکل است و پاشیده شدن آن خطرناک می باشد.
پیشنهاد مطالعه : قالب استاندارد طراحی استخر
برم مثل کلر ، یک هالوژن است که قدرت ضدعفونی کنندگی خوبی دارد. عنصر برم یک مایع خطرناک است که با آب واکنش نشان داده و واکنش آن به صورت فرمول زیر می باشد:Br2+H2O=HOBr+HBr
همانند تولید HOCL در کلر ، برم نیز دو نوع ماده ضد عفونی کننده تولید می کند. HOBr یا اسید هیپوبروموس که خاصیت ضدعفونی کنندگی دارد و HBr یا اسید هیدروبرومیک که PH را کاهش می دهد. عنصر برم ، در ایالات متحده برای استخرها استفاده نمی شود. منبع اولیه آن ، آب دریا است. این ماده در فتوگرافی ، تولید رنگ ، بنزین، ضد عفونی کننده ها و به عنوان گاز سمی در جنگ جهانی اول استفاده می شد.
در حالیکه عنصر برم در اروپا استفاده موفقیت آمیزی دارد ، ولی در امریکا به صورت نمکهای برومید سدیم یا سایر ترکیبات مانند کلر استفاده می شود، که اثر آن را افزایش می دهد.
برم تولید شده به این شکل ، به دو صورت قرصی شکل و یا تکه ای تولید می شود. اکسید کننده آن اغلب کلر یا مونوسولفات پتاسیم است و در بعضی موارد از ازن استفاده می شود. ترکیب برم با مونوپرسولفات پتاسیم اغلب برای استخرهای کوچک که به صورت دستی پر می شوند استفاده می گردد. بهترین ترکیب آن برم / کلر است. ترکیب برم و کلر ، اسید هیپوبرمین (HOBr) تولید می کند که یک ضد عفونی کننده است. و همینطور اسید هیپوکلروس (HOCL) که یک کاتالیزور بوده و به فرآیند ضدعفونی و اکسیداسیون کمک میکند. استفاده از برم چندین مزیت دارد. مهمترین آنها این است که ترکیبات برم یا برمامین ها موجب سوزش پوست نمی شوند و مثل ترکیبات کلر یا کلرامین ها بد بو نیستند. برمین (برم) در دماهای بالا پایدارتر از کلر است ، بنابراین استفاده از آن در آب گرم ، به کلر ارجحیت دارد ، به همین دلیل در وان های آب گرم و جکوزی ها ترجیح داده می شود.
ترکیب کلر ها و برم ها در آب گرم سریع بوده و بستگی به تعداد شناگران و افزایش میزان عرق بدن آنها به دلیل گرمای هوا دارد. از آنجا که برمین یک اکسید کننده قوی است ( ولی نه به اندازه کلر) ، مانند کلر احتراق پذیر بوده و باید به دقت نگه داری شود. برم ممکن است رنگ آب را سبز ، کدر و کف آلود کند. همچنین برم گرانتر از کلر می باشد.
یکی از مضرات استفاده از آن ناپایدار بودن آن است ، یعنی زیر نور آفتاب از بین میرود. متاسفانه اسید سیانوریک (CYA) را نمی توان برای پایدار کردن برم استفاده کرد. شاید بهترین کاربرد آن در وان های آب گرم و جکوزی ها باشد ، در حالیکه کلر برای استخرهای بزرگ مناسب است.
استفاده از ضد عفونی کننده مناسب برای استخرها مهم است تا آب استخر بهداشتی و امن باشد. برخی از بهترین ضد عفونی کنندههای استخر عبارتند از:
کلر: یکی از رایجترین ضدعفونی کنندههای استخر است که به عنوان یک اکسید کننده قوی عمل میکند و باکتریها و ویروسها را از بین میبرد.
برومین: این ماده نیز مانند کلر برای ضدعفونی کردن آب استخر استفاده میشود، اما معمولاً به عنوان جایگزین کلر استفاده میشود و برای برخی افراد با حساسیت به کلر مناسبتر است.
اکسیژن فعال: این یک گزینه ضد عفونی کننده غیرکلر است که با استفاده از اکسیژن فعال به عنوان ماده فعال عمل میکند.
ضدعفونی کنندههای با پایه نمک: این نوع از ضدعفونی کنندهها از ترکیبات نمکی مانند هالوژنها برای کنترل باکتریها و آلژیها استفاده میکنند.
قبل از استفاده از هر نوع ضد عفونی کننده، بهتر است با یک متخصص استخر مشورت کنید و دستورالعمل تولیدکننده محصول را رعایت کنید.
قیمت تجهیزات ضدعفونی استخر ممکن است بر اساس چندین عامل مختلف تعیین شود، این عوامل عبارتند از:
ابعاد استخر: اندازه استخر میتواند تأثیر زیادی بر قیمت تجهیزات ضدعفونی داشته باشد. استخرهای بزرگتر نیاز به تجهیزات بیشتری برای ضدعفونی دارند که این ممکن است هزینه را افزایش دهد.
نوع تجهیزات: تجهیزات ضدعفونی مختلفی برای استخرها موجود است، از جمله سیستمهای فیلتراسیون، سیستمهای پخش کلر یا ازن، و تجهیزات ضدباکتریال. هر کدام از این تجهیزات هزینههای متفاوتی دارند که باید در قیمت نهایی تجهیزات در نظر گرفته شوند.
کیفیت و برند: تجهیزات ضدعفونی استخر تولید شده توسط برندهای معتبر و با کیفیت معمولاً هزینه بیشتری دارند. انتخاب برندی که اعتماد به آن داشته باشید میتواند هزینه را افزایش دهد، اما ممکن است ارزش آن را با کیفیت بالا جبران کند.
نیازهای خاص: برخی استخرها نیازهای خاصی مانند سیستمهای تصفیه آب یا سیستمهای اتوماسیون بیشتری دارند که ممکن است قیمت را افزایش دهد.
هزینه نصب و نگهداری: هزینه نصب و نگهداری تجهیزات ضدعفونی استخر نیز باید در نظر گرفته شود. این شامل هزینه نیروی انسانی برای نصب و همچنین هزینه تعمیر و نگهداری دورهای است.
به طور کلی، قیمت تجهیزات ضدعفونی استخر بر اساس نیازهای خاص استخر، اندازه و موقعیت آن، و انتخاب تجهیزات مورد نیاز مشتریان تعیین میشود.
گارانتی تجهیزات ضد عفونی کننده بنا به مدل های مختلف آن ها متفاوت است.
با تشکر از اعتماد شما،فروشگاه اینترنتی بامین تهویه با ارائه ی تصاویر،اطلاعات فنی و مشخصات انواع تجهیزات ضد عفونی امکان مقایسه و خریدی مطمئن در اختیار مشتریان محترم قرار داده است. مشاورین بامین تهویه آماده ی پاسخ گویی به سوالات فنی شما در خصوص مشخصات فنی تجهیزات ضد عفونی می باشند.
بامین تهویه تخصصی ترین وب سایت کشور در زمینه تأسیسات
ضدعفونی آب استخر برای از بین بردن باکتریها، ویروسها و جلبکها ضروری است. عدم ضدعفونی مناسب باعث آلودگی آب، تغییر رنگ و بوی نامطبوع میشود و سلامت شناگران را به خطر میاندازد.
کلر پراستفادهترین ماده ضدعفونی کننده استخر است. دلیل محبوبیت آن هزینه کم، دسترسی آسان، ماندگاری بالا در آب و اثربخشی قوی در از بین بردن میکروارگانیسمهاست.
کلر در سه شکل مایع، جامد (پودر یا قرص) و گاز موجود است. کلرهای جامد (به ویژه قرصها) برای استخرهای خانگی و پودری برای استخرهای عمومی رایجترند.
ازن با اکسیژن فعال، باکتریها و ویروسها را سریعتر از کلر از بین میبرد. مزیت آن بیبو بودن و عدم ایجاد ترکیبات مضر مانند کلرامین است، اما معمولاً به عنوان مکمل کلر استفاده میشود.
لامپهای UV با تابش نور ماوراءبنفش به آب در حال عبور، میکروارگانیسمها را از بین میبرند. اما این روش نیاز به ترکیب با اکسیدانها (مثل پراکسید هیدروژن) دارد.
pH نامناسب (اسیدی یا قلیایی) باعث کاهش اثر کلر، خوردگی تجهیزات یا تحریک پوست میشود. همچنین آب اسیدی به سطوح فلزی و آب قلیایی به تجهیزات رسوب میزند.
دیدگاه خود را با ما در میان بگذارید

دیدگاهی یافت نشد!