سختی گیر رزینی پاکمن یکی از کاربردی ترین سختی گیر های تولید شده در ایران می باشد . برای ساخت سختی گیر رزینی پاکمن ، بر اساس نحوه ی عملکرد آن نیاز به اندازه قطر و ارتفاع منبع سختی گیر می باشد که با توجه به ظرفیت آن بدست می آید .سختی گیر رزینی پاکمن پس از تعیین ابعاد منبع طراحی می شود .
>> راهنمای خرید سختی گیر رزینی پاکمنسختی گیر رزینی پاکمن یکی از کاربردی ترین سختی گیر های تولید شده در ایران می باشد . برای ساخت سختی گیر رزینی پاکمن ، بر اساس نحوه ی عملکرد آن نیاز به اندازه قطر و ارتفاع منبع سختی گیر می باشد که با توجه به ظرفیت آن بدست می آید .سختی گیر رزینی پاکمن پس از تعیین ابعاد منبع طراحی می شود .
به منظور تکمیل اطلاعات مشتریان عزیز، توضیحات جامع و تخصصی در ارتباط با خرید محصولات سختی گیر رزینی پاکمن در زیر به تفصیل بیان شده است.
همچنین کاربران عزیز می توانند جهت مشاهده 12 برند معتبر سختی گیر ، و مقایسه قابلیت های هر برند و کاربری هر یک از مدل های سختی گیر به لینک زیر مراجعه نمایند.

سختی گیر رزینی پاکمن تولید شده با استفاده از استاندارد ASME و ورق کربن استیل ( st37 ) می باشد ، بدین صورت که ورق کربن استیل با عرض مشخص ( با اندازه ارتفاع عدسی تا عدسی سختی گیر رزینی پاکمن ) را رول کرده و خال جوش می زنند ، سپس استوانه اصلی سختی گیر رزینی پاکمن کاملا جوش خورده و مرحله ی بعد جوش دادن عدسی بالای سختی گیر رزینی پاکمن ( به همراه آبفشان ) به بالای استوانه است .
در زیر استوانه برش دایره ای با قطر بیشتر از قطر خارجی استوانه جوش داده می شود که جهت قرار دادن نازل دارای تعداد مشخصی سوراخ است . جوش دادن ورق دایره ای از زیر به عدسی پایین و اتصال پایه های سختی گیر رزینی پاکمن نیز به آن انجام می گیرد .
نصب نازل سختی گیر برای دریچه های بازدید آدم رو و خروجی های سختی گیر رزینی پاکمن و سپس برش محل های تعبیه شده است .
قبل از خم کردن و رول کردن ورق روی بدنه می توان سوراخ های مورد نیاز را جهت طراحی دقیق تر با دستگاه CNC ایجاد کرد .
خط جوش های سختی گیر های فولادی را با فرچه و سنگ زنی کامل تمیزکاری کرده و ضد زنگ کردن آن ها از داخل با دو لایه رنگ اپوکسی صورت می گیرد .
در سطح پایینی سختی گیر رزینی پاکمن نازل ها از طریق دریچه آدم رو نصب می شوند .
رنگ بیرونی سختی گیر رزینی پاکمن با اعتماد به سلیقه کارخانه سازنده یا به درخواست مشتری می باشد .
شیر های نصب شده بر روی سختی گیر های مکانیکی رزینی پاکمن در انواع اتوماتیک ، نیمه اتوماتیک و دستی است .
دارای دو مخزن که یکی به عنوان رزرو جهت مواقعی که سیستم سختی گیر رزینی پاکمن دوبلکس نیاز به شست و شو معکوس دارد ، در این صورت سیستم سختی گیر رزینی پاکمن هیچگاه از مدار خارج نمی شود . اهمیت این مزیت زمانی بیشتر می شود که نیاز به حضور پیوسته سختی گیر رزینی پاکمن است و در مواقع احیاء یا تعمیرات نمی توان آن را از مدار خارج کرد .
جهت تنظیم و بررسی اپراتور تمامی شیرآلات و تجهیزات مورد استفاده درسختی گیر رزینی پاکمن به صورت دستی در نظر گرفته شده است و امکان سفارش آن به صورت دیجیتال بنا به سفارش مشتری و کاربری وجود دارد.
معرفی بخش های مهم سختی گیر رزینی پاکمن عبارتند از :
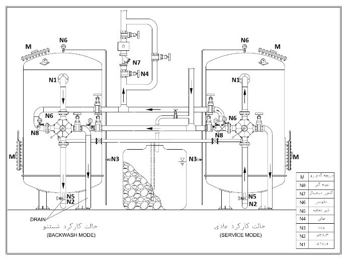
در تصویر بالا یکی از مخازن سختی گیر رزینی پاکمن در حالت شست و شو و دیگری در حالت عملکرد عادی است .
در حالت نشسته ، مسیر حرکت سیال در حالت شست و شو به سمت شیر های تخلیه بوده تا آب را از سیستم خارج گرداند .
جهت سختی گیری و تصفیه در حالت کارکرد عادی آب از زیر وارد سیستم می شود و از بالا به سمت رزین تزریق می گردد .
آب پس از تصفیه از مسیر خروجی به سمت مصرف کننده هدایت شده و به جهت حذف مواد معلق جامد موجود در آب و یا سیلیس خارج شده یا رزین احتمالی آب در مسیر عبوری یک صافی ( استرینر ) نصب شده است .
در نتیجه آب خروجی از سختی گیر رزینی پاکمن به مصرف کننده فاقد ذرات مخرب و آسیب زننده احتمالی است .
جهت سنجش میزان دبی از یک کنتور ( به صورت اختیاری ) بعد از صافی استفاده شده که بر اساس نیاز می تواند دیجیتال ( برای اتصال به ادوات کنترلی ) یا دستی ( برای بررسی توسط اپراتور ) باشد .
قبل و بعد این صافی و کنتور یک شیر به همراه یک بای پس نصب می گردد .
شیر مسیر بای پاس در حالت عادی بسته بوده و در صورت ایجاد خلل و یا نیاز به تعمیر سختی گیر رزینی پاکمن باز می شود تا سیستم بتواند در زمان تعمیرات به فعالیت خود ادامه دهد زیرا در این حالت شیر های مسیر اصلی بسته می شوند .
روند شست و شو معکوس در سختی گیر رزینی پاکمن بدین صورت می باشد که لوله آب ورودی در دو سختی گیر تقسیم شده و در هر کدام دارای شیر می باشد .
هرگاه که یکی از سختی گیر ها نیاز به احیاء و شست وشو رزین پیدا نمود شیر ورودی یکی از مخازن سختی گیر رزینی پاکمن در حالت بسته قرار می گیرد و شیر سولو آن تغیر وضعیت می دهد و مخزن دیگر مقدار آب ورودی را از خود عبور داده و عمل سختی گیری را ادامه می دهد تا عمل احیاء و شست و شو رزین در مخزنی دیگر به پایان برسد و در حالت RUN قرار گیرد .
زمانی که یکی از مخزن ها در حالت شست و شو معکوس قرار می گیرد ، همانطور که گفته شد شیر تغذیه آن بسته و شیر مخزن نمک باز شده و عملیات تزریق محلول نمک شروع می شود ، در این حالت تزریق نمک به رزین اشباع شده صورت گرفته و هر دو شیر N2 و N5 در حالت تخلیه قرار می گیرند و آب و نمک تزریقی موجب احیاء و شست و شو رزین شده تا سختی گیر رزینی پاکمن مجددا در مسیر قرار گیرد .
حجم رزین
ابعاد ( مانند قطر و ارتفاع )
جنس بدنه ، که معمولا به همراه سایر مشخصات شامل دبی آب سرویس ، دبی آب احیاء و دبی شست و شو سریع توسط شرکت سازنده ارائه شده تا حجم رزین محاسبه گردد .
در انتخاب سختی گیر رزینی پاکمن به موارد زیر توجه کنید :

فرمول فوق برای محاسبه ظرفیت سختی گیر رزینی شرکت پاکمن و البته سایر سختی گیرها می باشد .

محاسبه حجم رزین مورد نیاز برای سختی گیر رزینی پاکمن انتخاب شده را می توان از رابطه ذکر شده ، ظرفیت سختی گیر را به ظرفیت رزین تقسیم نمود ، بدست آورد .
گارانتی سختی گیر رزینی پاکمن به مدت 24 ماه می باشد .
با تشکر از اعتماد شما ، فروشگاه اینترنتی بامین تهویه با ارائه ی تصاویر ، اطلاعات فنی و مشخصات انواع سختی گیر رزینی پاکمن امکان مقایسه و خریدی مطمئن در اختیار مشتریان محترم قرار داده است .
مشاورین بامین تهویه آماده ی پاسخ گویی به سوالات فنی شما در خصوص مشخصات فنی سختی گیر رزینی پاکمن می باشند .
بامین تهویه تخصصی ترین وب سایت در زمینه تأسیسات کشور
سختی گیر رزینی پاکمن با استفاده از ورق کربن استیل به روش رول کردن و جوشکاری ساخته میشود و تمامی خطوط جوش از داخل با دو لایه رنگ اپوکسی ضدزنگ میشوند تا طول عمر دستگاه افزایش یابد.
این سختی گیر دارای دو مخزن است که یکی به صورت رزرو هنگام شستوشوی معکوس کار میکند تا سیستم هیچگاه از مدار خارج نشود و عملیات سختیگیری بدون وقفه ادامه یابد.
شیر ورودی یکی از مخازن بسته شده و شیر مخزن دیگر باز میشود و محلول نمک تزریق میشود تا رزین اشباع شده احیاء و شستوشو گردد و دستگاه دوباره آماده استفاده شود.
ظرفیت سختی گیر بر اساس دبی آب ورودی، سختی آب، نوع و ظرفیت رزین و سیکل احیاء محاسبه میشود و سپس حجم رزین مورد نیاز از تقسیم ظرفیت سختی گیر بر ظرفیت رزین بدست میآید.
شیر بای پس برای مواقعی است که تعمیرات یا خللی در عملکرد دستگاه پیش میآید و به این ترتیب سیستم میتواند بدون توقف فعالیت کند.
دیدگاه خود را با ما در میان بگذارید

عرفان پور
چهارشنبه 5 دی 1403مکانیزم عمکرد سختی گیر pws-40a چیه ؟
بامین تهویه
چهارشنبه 5 دی 1403سلام دوست عزیز .
مکانیزم عمکرد سختی گیر 140000 گرین پاکمن PWS-40 A ، رزینی می باشد .
سراجی
سه شنبه 6 آذر 1403روز بخیر .
ضخامت بدنه سختی گیر رزینی 110000 گرین پاکمن PWS-40 B اگ بخوام 8 میلی متر و سفارشی باشه ، مقدوره طراحی و تولیدش ؟یا فقط اندازه ضخامت هایی که خود شرکت فابریک تولید کرده قابل خرید هستش ؟
بامین تهویه
سه شنبه 6 آذر 1403ممنون روز شما هم بخیر دوست عزیز .
ضخامت بدنه سختی گیر رزینی 110000 گرین پاکمن ، طبق سفارش شما مشتری عزیز قابل سفارش در بازه ی 6 میلی متر تا 10 میلیمتر می باشد .
غلامرضایی
سه شنبه 1 آبان 1403سختی گیر رزینی پاکمن با ظرفیت 78000 گرین ، موجود دارید ؟
بامین تهویه
سه شنبه 1 آبان 1403لطفا جهت استعلام موجودی برای محصول موردنظرتون با واحد فروش شرکت بامین تهویه تماس بگیرید . 88306500-021
تل ماری
دوشنبه 19 شهریور 1403وقتتون بخیر .
اگر بخوام رنگ بیرونی سختی گیر رزینی پاکمن تغییر کنه و به نظر خودم باشه ، ممکنه ؟ یا حتما باید از بین مدل هایی که کارخانه خودش به سلیقه خودش زده انتخاب کنم ؟
بامین تهویه
دوشنبه 19 شهریور 1403سلام ممنون وقت شما هم بخیر .
رنگ بیرونی سختی گیر رزینی پاکمن با اعتماد به سلیقه کارخانه سازنده یا به درخواست شما مشتری عزیز ، می باشد .
متقی
چهارشنبه 24 مرداد 1403سختی گیر رزینی پاکمن با ورق کربن استیل (st37) اصل باشه حتما دارین موجود ؟
بامین تهویه
چهارشنبه 24 مرداد 1403سلام . سختی گیر رزینی پاکمن تولید شده از ورق کربن استیل st37 و با استاندارد ASME می باشد .
لطفا جهت استعلام موجودی برای سختی گیر رزینی با برند پاکمن ، با واحد فروش شرکت بامین تهویه تماس بگیرید تا همکارانمون راهنماییتون کنن . 88306500-021
چیا
یکشنبه 27 اسفند 1402سلام .سختی گیر کاریزاب موجود دارین؟
بامین تهویه
یکشنبه 27 اسفند 1402سلام دوست عزیز . لطفا جهت استعلام موجودی و قیمت برای سختی گیر کاریزاب با واحد فروش تماس بگیرید تاهمکارانمون راهنماییتون کنن. 88306500-021
ثاقب
شنبه 26 اسفند 1402فروش رزین سختی گیر آب با امکان پرداخت قسطی دارین؟
بامین تهویه
شنبه 26 اسفند 1402سلام دوست عزیز. خیر ما برای هیچ یک از محصولاتمون ، امکان پرداخت به روش قسطی رو نداریم.
بهدین
پنجشنبه 24 اسفند 1402سلام وقتتون بخیر . سختی گیر رزینی فلزی موجود دارین؟
بامین تهویه
پنجشنبه 24 اسفند 1402سلام ممنون وقت شما هم بخیر . لطفا جهت استعلام موجودی برای سختی گیر رزینی فلزی با واحد فروش تماس بگیرید تا همکارانمون راهنماییتون کنن. 88306500-021
بِهنیا
چهارشنبه 23 اسفند 1402سختی گیر دیگ بخار با پرداخت قسطی دارین برای فروش؟
بامین تهویه
چهارشنبه 23 اسفند 1402سلام دوست عزیز .خیر ما برای هیچ یک از محصولاتمون امکان پرداخت به روش قسطی رو نداریم.
آرین
سه شنبه 22 اسفند 1402شما سختی گیر اولتراسونیک بیتا دارین؟
بامین تهویه
سه شنبه 22 اسفند 1402سلام . لطفا جهت استعلام موجودی برای سختی گیر ، با واحد فروش تماس بگیرید و برند مد نظرتون رو اعلام بفرمایید تا همکارانمون راهنماییتون کنن. 88306500-021